Корзина пуста
Поиск по учебным заведениям

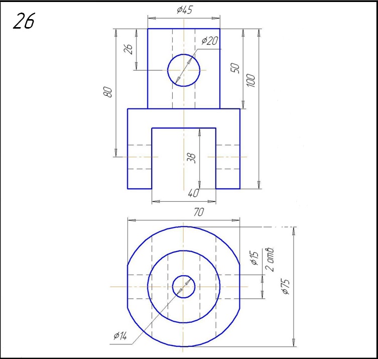
Вариант 26

1.
Вилка

Задание:
Начертить: а) главный вид в соединении с фронтальным разрезом; б) вид сверху; в) вид слева в соединении с профильным разрезом; г) косоугольную диметрическую проекцию детали с разрезом.


2.
Стойка

Задание:
Начертить: а) фронтальный разрез; б) вид сверху; в) вид слева в соединении с профильным разрезом; г) данную аксонометрическую проекцию.


3.
Крышка

Задание:
Начертить: а) разрез А-А; б) вид сверху; в) вид слева в соединении с профильным разрезом. Примечание: 4 отв. Б – сквозные.