Корзина пуста
Поиск по учебным заведениям

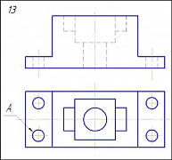
Вариант 13

1.
Стойка

Задание:
Начертить: а) главный вид детали; б) вид сверху; в) профильный разрез; г) местный разрез по отв. А; д) вынесенное сечение ребра жёсткости Б; е) прямоугольную изометрическую проекцию детали с разрезом.


2.
Стойка

Задание:
Начертить: а) главный вид детали; б) вид сверху; в) профильный разрез; г) местный разрез по отв. А; д) вынесенное сечение ребра жёсткости Б; е) косоугольную диметрическую проекцию детали с разрезом.


3.
Салазки

Задание:
Начертить: а) главный вид детали в соединении с фронтальным разрезом; б) вид сверху; в) вид слева в соединении с профильным разрезом; г) местный разрез по сквозному отверстию А; д) данную аксонометрическую проекцию детали.


4.
Подставка

Задание:
Начертить: а) главный вид в соединении с фронтальным разрезом; б) вид сверху; в) вид слева в соединении с профильным разрезом; г) местный разрез по отв. А.